Beschrijving

Dit is zo’n huis dat je pas écht begrijpt als je binnen bent geweest! Een familiehuis waar iedereen z’n eigen plek heeft – én het strand gewoon om de hoek ligt.

Deze verrassend royale woning aan de Bestevaerweg 14 biedt precies dat. Gelegen in één van de meest geliefde straten van Katwijk woon je hier op loopafstand van zowel het strand als het centrum, met alle voorzieningen binnen handbereik. De woning is goed onderhouden en valt direct op door de royale indeling en het wooncomfort. 

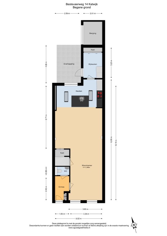
De begane grond is ruim en praktisch opgezet. De uitgebouwde woonkamer biedt volop plaats voor een grote zithoek en een eethoek, ideaal voor zowel het dagelijks leven als het ontvangen van gasten.

De luxe open keuken met kookeiland vormt het hart van de woning: een plek waar koken en samenzijn moeiteloos samenkomen. De keuken is compleet uitgerust met diverse inbouwapparatuur, waaronder een Quooker, stoomoven, combi-oven, koelkast, vaatwasser, inductiekookplaat en afzuigkap, en biedt veel werk- en opbergruimte. Aansluitend bevindt zich de bijkeuken met extra bergruimte en aansluitingen voor wasapparatuur.

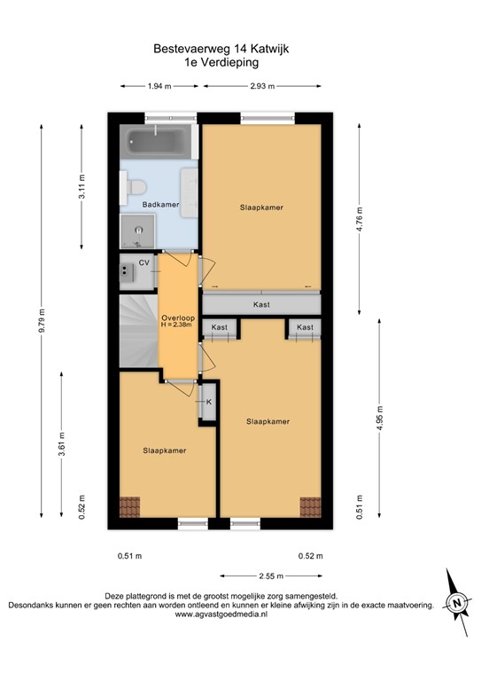
Op de eerste verdieping vind je op de overloop een kast met de CV-ketel (2026!), drie ruime slaapkamers en een complete badkamer met ligbad, separate douche, toilet en wastafelmeubel. Er is alvast een beloopbaar dakterras gerealiseerd; de toegang is op dit moment nog niet aanwezig.

De tweede verdieping biedt nog eens twee slaapkamers en volop bergruimte, waardoor deze woning verrassend veel mogelijkheden heeft, ideaal voor grotere gezinnen, werken aan huis of een hobbyruimte. Nog niet genoeg bergruimte? Er is ook nog een ruime bergzolder, bereikbaar via een vlizotrap.

De achtertuin is vrij gelegen en biedt veel privacy en een fijne zonligging. Onder de terrasoverkapping zit je hier het hele jaar door comfortabel buiten. Daarnaast is er meer dan voldoende ruimte voor een grote loungeset of eettafel. Een trampoline of zandbak? Ook daar is hier volop plek voor. De woning beschikt bovendien over een externe schuur, perfect voor fietsen en extra opslag. De berging is voorzien van een loopdeur en roldeur, waardoor het stallen van bijvoorbeeld een bakfiets eenvoudig is.

Zie jij jezelf hier al wonen? Wacht niet af en kom kijken! Je bent van harte welkom.

De vraagprijs € 649.000,- k.k. is een bieden vanaf prijs

Bijzonderheden

-	Woonoppervlak ca. 146 m2, terrasoverkapping ca. 10 m2, bergvliering  ca. 14 m2 (NEN2580 meetcertificaat aanwezig)
-	Bouwjaar circa 1930
-	Perceel 143 m2
-	Zeer royale woonkamer met luxe, open en complete keuken
-	Praktische bijkeuken en schuur met elektrische klep
-	Energielabel B, CV-ketel 2026!
-	5 uitstekende slaapkamers en bergvliering
-	Royale badkamer
-	Beschutte zonnige achtertuin met terrasoverkapping
- 	Voorgevel 4 jaar geleden gestuct
-   Mogelijkheid tot het creeren van parkeergelegenheid aan de voorzijde 
-	Ideale ligging nabij strand, centrum van Katwijk en voorzieningen om de hoek

Kenmerken