Verkocht
Verkocht: Nieuwstraat 18, 2223 BR Katwijk
Beschrijving
Waarom klein beginnen als je meteen groots kunt wonen?Deze hoekwoning is ideaal voor starters of kleine huishoudens die nét wat meer verwachten dan een appartement. Geen gedeelde entree, geen VvE of bovenburen, maar gewoon je eigen voordeur, je eigen buitenruimte en alle ruimte om je leven in te richten zoals jij wilt.
Met een lichte woonkamer, drie slaapkamers en een beschutte buitenplaats met achterom heb je hier alle vrijheid om te wonen, werken, relaxen en groeien — zonder concessies.
De pluspunten op een rij:
• Ruime woonkamer met veel lichtinval
• Open keuken met diverse inbouwapparatuur en volop kastruimte
• Grote badkamer met ligbad, tweede toilet en wastafel
• Drie goed ingedeelde slaapkamers
• Beschutte buitenplaats met achterom
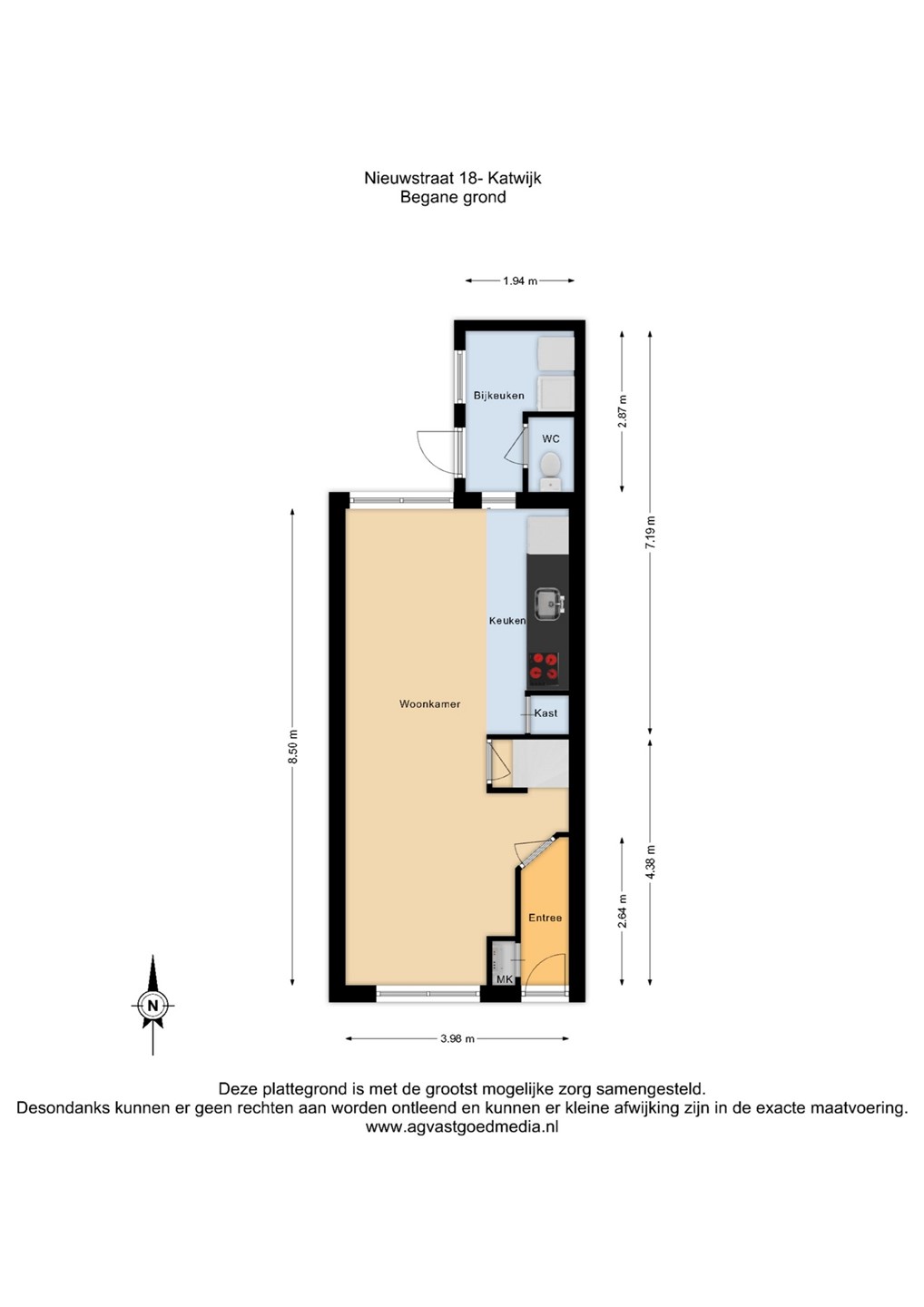
Indeling
Begane grond
Je komt binnen via de entree met hal en meterkast, waarna je direct de verrassend ruime woonkamer binnenstapt. Aan de voorzijde bevindt zich een gezellige zithoek waar je je zo voorstelt hoe je hier neerploft met een goed boek of een avondje tv. Aan de achterzijde ligt de open keuken, voorzien van diverse inbouwapparatuur en heel veel kastruimte – ideaal voor wie graag kookt of simpelweg van overzicht houdt.
De achterzijde van de woonkamer biedt zó veel ruimte dat je hier moeiteloos een royale eethoek kwijt kunt. Denk aan een lange tafel voor etentjes met vrienden of misschien zelfs een kookeiland; de indeling laat zich gemakkelijk aanpassen aan jouw woonwensen.
Aansluitend bevindt zich de praktische bijkeuken met aansluitingen voor wasmachine en droger, plus een apart toilet – heel handig om alles uit het zicht te houden.
De buitenplaats is lekker besloten en biedt volop mogelijkheden om er een sfeervolle plek van te maken. Of je nu kiest voor een eettafel, een loungeset of juist veel groen; hier kun je alle kanten op. Dankzij de achterom en de houten berging is het ook praktisch in gebruik. De berging heeft nog wat liefde nodig, maar vormt een mooie basis voor extra opslag.
Eerste verdieping
Op de eerste verdieping liggen twee ruime slaapkamers. De kamer aan de voorzijde is voorzien van een dakkapel, wat zorgt voor extra licht en ruimte. De slaapkamer aan de achterzijde heeft Velux dakramen én een grote vaste kast – ideaal voor kleding of extra opbergruimte.
De badkamer is groter dan je zou verwachten: compleet uitgevoerd met een ligbad, wastafel en tweede toilet. Een fijne plek om de dag ontspannen te beginnen of af te sluiten.
Tweede verdieping
De bovenste etage herbergt een derde slaapkamer, eveneens met dakkapel en bergruimte. Hier staat ook de CV-ketel opgesteld (Nefit, 2022). Een ideale kamer als logeer- of werkkamer, maar ook perfect als master bedroom.
Kortom
Een heerlijke, praktische hoekwoning met veel mogelijkheden en verrassend veel ruimte. Perfect voor wie zoekt naar comfort, privacy en een plek waar je direct fijn kunt wonen – met ruimte om het gaandeweg helemaal eigen te maken.
Bijzonderheden
- Bouwjaar ca. 1930- Woonoppervlak ca. 76 m2 en berging 2 m2 (NEN 2580 meetcertificaat aanwezig)
- De woning is deels voorzien van kunststof kozijnen en nagenoeg geheel dubbel glas
- CV-ketel Nefit 2022
- Royale badkamer met ligbad, wastafel en tweede toilet
- Energielabel E
- Drie royale slaapkamers
- Centrale ligging in geliefde straat in Katwijk aan de Rijn
Kenmerken
| Overdracht | |
|---|---|
| Referentienummer | 06143 |
| Vraagprijs | € 440.000,- k.k. |
| Status | Verkocht |
| Aanvaarding | In overleg |
| Aangeboden sinds | Woensdag 1 oktober 2025 |
| Laatste wijziging | Dinsdag 30 december 2025 |
| Bouw | |
|---|---|
| Type object | Woonhuis, eengezinswoning, eind woning |
| Soort bouw | Bestaande bouw |
| Bouwperiode | 1931 |
| Dakbedekking | Dakpannen |
| Type dak | Zadeldak |
| Isolatievormen | Grotendeels dubbel glas |
| Oppervlaktes en inhoud | |
|---|---|
| Perceeloppervlakte | 74 m² |
| Woonoppervlakte | 76 m² |
| Inhoud | 278 m³ |
| Oppervlakte externe bergruimte | 2 m² |
| Indeling | |
|---|---|
| Aantal bouwlagen | 3 |
| Aantal kamers | 4 (waarvan 3 slaapkamers) |
| Aantal badkamers | 1 (en 1 apart toilet) |
| Tuin | |
|---|---|
| Type | Afgesloten tuin |
| Hoofdtuin | Ja |
| Oriëntering | Noord west |
| Heeft een achterom | Ja |
| Staat | Normaal |
| Energieverbruik | |
|---|---|
| Energielabel | E |
| CV ketel | |
|---|---|
| CV ketel | Nefit |
| Bouwjaar | 2022 |
| Combiketel | Ja |
| Eigendom | Eigendom |
| Uitrusting | |
|---|---|
| Warm water | CV-ketel |
| Verwarmingssysteem | Centrale verwarming |
| Keukenvoorzieningen | Inbouwapparatuur |
| Badkamervoorzieningen | Ligbad Toilet Wastafel |
| Tuin aanwezig | Ja |
| Kadastrale gegevens | |
|---|---|
| Kadastrale aanduiding | Katwijk D 1722 |
| Perceeloppervlakte | 74 m² |
| Omvang | Geheel perceel |
| Eigendomsituatie | Eigen grond |